Обяви За нас Контакти
Продава 2-СТАЕН
град Варна, Владислав Варненчик 1
79 900 €
156 270.82 лв.

(1 537 €, 3 006.11 лв./m2)
Цената е с включено ДДС
История на цената
Коригирана в 18:33 на 29 октомври, 2025 год.
Обявата е посетена 2986 пъти.
Площ:
52 m2
Етаж:
3-ти от 7
ТEЦ:
НЕ
Строителство:
Тухла, Не е въведен в експлоатация

Описание на имота:


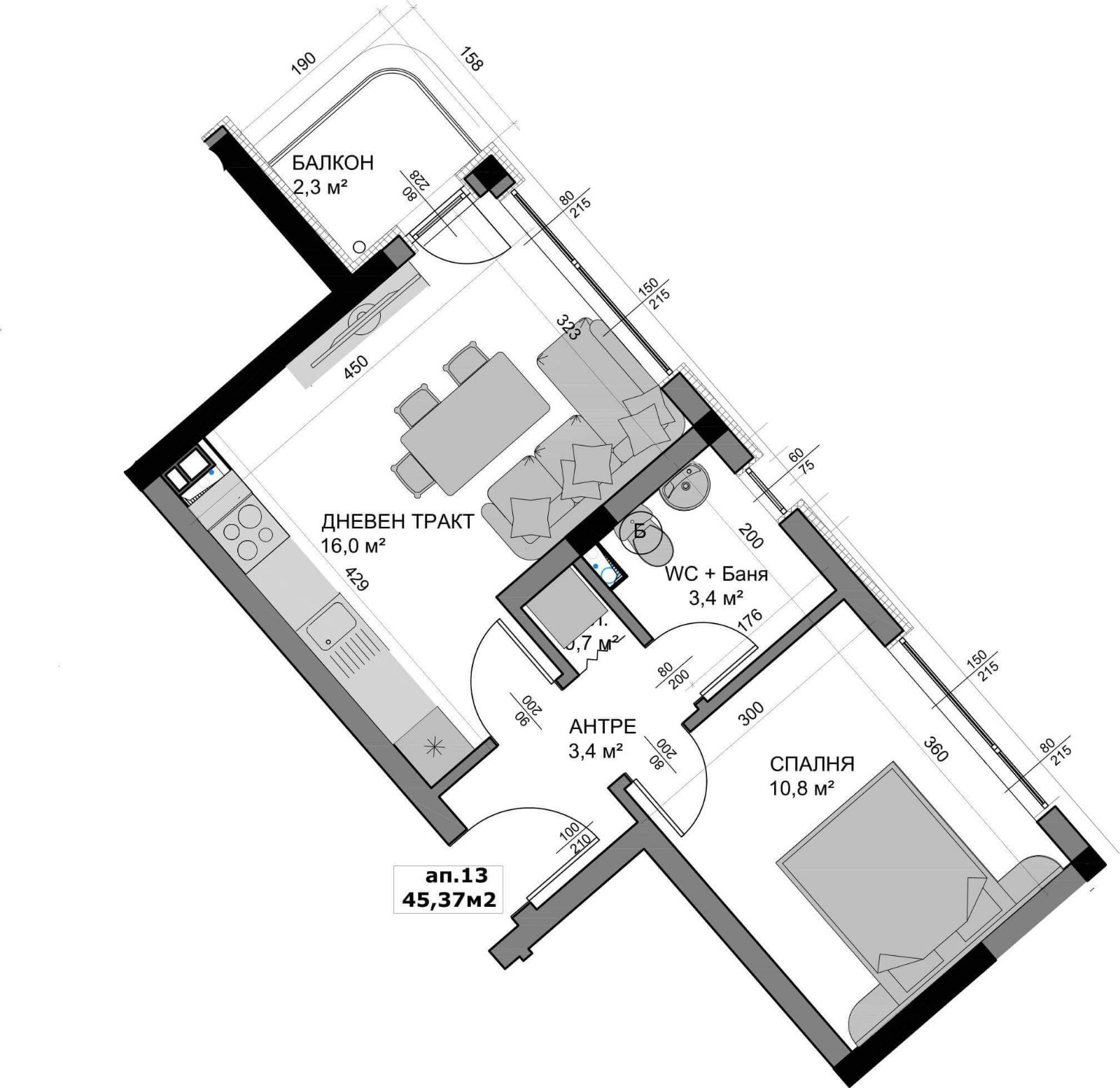
ЕКСКЛУЗИВНО! ПРЕД АКТ 14! ЕРА Варна Тренд предлага за продажба двустаен апартамент в новострояща се сграда Фюжън 2, в долната част на жк Владиславово. Имотът е със застроена площ 45,37 кв.м (52,07 кв.м с общите части), разположен на трети етаж от общо 7 етажа. Състои се от дневна с кухненски бокс (16 кв.м) и излаз на балкон (2,3 кв.м), спалня (10,8 кв.м), коридор (3,4 кв.м), баня с тоалетна (3,4 кв.м) и килер (0,7 кв.м). Изложението е североизток. Статутът е на апартамент.

Жилището се продава необзаведено. Ще бъде завършено до степен БДС. Отоплението ще бъде с електричество.

Двустайният апартамент се намира в долната част на жк Владиславово, в жилищен комплекс Фюжън 2. Сградата е 7-етажна, с асансьор, на етап на строителство пред издаване на Акт 14, изпълнена с качествени материали, от доказал се на пазара инвеститор с множество построени сгради във Варна. Етапи на строителство: Откриване на строителна плащадка - 27.11.2024 г. Акт образец 14 - 31.10.2025 г. Акт образец 15 - 31.12.2026 г. Разрешение за ползаване (Акт 16) до 3 /три/ месеца от завършване на строежа и подписване на акт обр.15.

СТЕПЕН ЗА ЗАВЪРШЕНОСТ

Общи части на сградата: подови настилки и стъпала от гранитогрес или гранит; стени - декоративна мазилка; асансьор - ORONA;
Апартаменти: вътрешни стени - тухла с гипсова мазилка; тавани гипсокартон; под на стаи - циментова замазка; баня-тоалет: под циментова замазка, стени вароциментова мазилка; ел. инсталация завършена напълно до ключове, контакти, оптичен кабел до апартамент; В и К инсталации завършени до тапа; Изграждане на тръбни връзки за монтаж на климатици, на определени по архитектура места. Външна врата блиндирана с облечена декоративна каса; Прозорци: Висококачествена PVC дограма - 5 или 6 камерна с двойни стъклопакети ширина 32 мм, 6 мм четири сезона/4 мм бяло флоатно стъкло, подпрозоречни первази.

Оферта 0221502
Виж всички обяви в varnatrend.bazar.bg или тук
Особености
Тухла
Асансьор
За контакт:
0894625282
Брокер:
Ирена Евгениева
0894 625282, 052 625272
Още оферти от брокера: Продава | Дава под наем | Купува | Наема
Агенция:
ЕРА ВАРНА ТРЕНД
0894625282
ЕРА ВАРНА ТРЕНД logo
Медал за прослужено време
В imot.bg от 2004 г.
varnatrend.imot.bg
Адрес:
област Варна, гр. Варна, ул. Шар 1
ИЗПРАТИ ЗАПИТВАНЕ
ИЗПРАТИ ЗАПИТВАНЕТО

Продава 2-СТАЕН
град Варна, Владислав Варненчик 1
Обява: 1b174964620206634

79 900 €
156 270.82 лв.
История на цената
(1 537 €, 3 006.11 лв./m2)

Цената е с включено ДДС
ЗАПАЗИ ОБЯВАТА

Местоположение: град Варна, Владислав Варненчик 1

Допълнителни данни за имотите в района и сравнение с други райони: Търсене в АРХИВ 2013 - 2025 г.











Добави/редактирай
вид имот и район
*Средните цени са определени чрез медиана стойност.