varnatrend.imot.bg Обяви За нас Контакти
Продава 2-СТАЕН
град Варна, м-т Долна Трака
134 900 €
263 841.47 лв.

(1 874 €, 3 665.23 лв./m2)
Цената е с включено ДДС
История на цената
Публикувана в 13:40 на 18 март, 2026 год.
Обявата е посетена 164 пъти.
Площ:
72 m2
Етаж:
3-ти от 4
ТEЦ:
НЕ
Строителство:
Тухла, Не е въведен в експлоатация

Описание на имота:


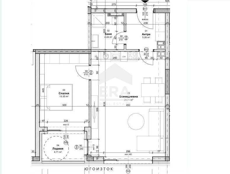
ЕРА Варна Тренд предлага за продажба двустаен югоизточен апартамент с голяма дневна и морска панорама, в новострояща се сграда, в м-т Долна Трака, с бърз достъп до града по асфалтов път. Имотът е със застроена площ 64 кв.м (72 кв.м с общите части), разположен на трети етаж от общо 4 етажа. Състои се от просторна дневна с кухненски бокс (29 кв.м), спалня (13,35 кв.м), обща за двете стаи лоджия (4,71 кв.м), входно антре (5,28 кв.м), баня с тоалетна (4,24 кв.м) и прилежащо мазе. Изложението е югоизток, като ще се открива гледка към морето, сред спокойствие и тишина.

Жилището се продава необзаведено. Ще бъде завършено до степен БДС, с поставена ПВЦ дограма. Налични са електричество, вода и канализация в имота.

Двустайният апартамент се намира в четириетажна тухлена сграда, на начален етап на строителство. Очаква се да бъде въведена в експлоатация (Акт 16) през 2027 г. В сградата се предлагат също тристайни мезонети и четиристайни апартаменти. Има възможност за допълнително закупуване на открито паркомясто, на цена 10 000 евро.

Оферта 0222341
Особености
Тухла
За контакт:
0894625282
Брокер:
Силвия Дачева
0894625282
Още оферти от брокера: Продава | Дава под наем | Купува | Наема
Агенция:
ЕРА ВАРНА ТРЕНД
0894625282
ЕРА ВАРНА ТРЕНД logo
Медал за прослужено време
В imot.bg от 2004 г.
varnatrend.imot.bg
Адрес:
област Варна, гр. Варна, ул. Шар 1
ИЗПРАТИ ЗАПИТВАНЕ
ИЗПРАТИ ЗАПИТВАНЕТО

Продава 2-СТАЕН
град Варна, м-т Долна Трака
Обява: 1b177383400710680

134 900 €
263 841.47 лв.
История на цената
(1 874 €, 3 665.23 лв./m2)

Цената е с включено ДДС
ЗАПАЗИ ОБЯВАТА

Местоположение: град Варна, м-т Долна Трака

Допълнителни данни за имотите в района и сравнение с други райони

Покажи

Период

и 3 месеца

* Средните цени са определени чрез медианна стойност