Обяви За нас Контакти
Продава КЪЩА
град Варна, м-т Манастирски рид
350 000 €
684 540.50 лв.

(1 842 €, 3 602.64 лв./m2)
Цената е с включено ДДС
Коригирана в 14:15 на 28 октомври, 2025 год.
Обявата е посетена 923 пъти.
Площ:
190 m2
Двор:
500 m2
ТEЦ:
НЕ
Строителство:
Тухла, Не е въведен в експлоатация

Описание на имота:


ЕРА Варна Тренд предлага за продажба двуетажна новострояща се къща в м-т Манастирски рид, разположена в парцел с правилна форма, равен и с асфалтов достъп, с лице на улицата. Къщата е с РЗП 190 кв.м и следното разпределение:

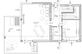
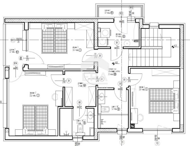
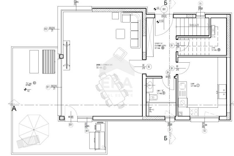
Първият етаж със застроена площ 90,05 кв.м се състои от просторна дневна с кухненски бокс (38,3 кв.м) и излаз на широка веранда (29,2 кв.м), кухня (13,4 кв.м), която може да бъде използвана като спалня, коридор (10,9 кв.м), баня с тоалетна (5,3 кв.м) и склад (5,4 кв.м). Вътрешно стълбище води до втория етаж със застроена площ 99,74 кв.м, който включва родителска спалня (15,1 кв.м) със собствена баня с тоалетна (4 кв.м) и дрешник (5 кв.м), втора спалня (13,7 кв.м), трета спалня (13,4 кв.м), балкон (3,7 кв.м) към две от спалните, коридор (13 кв.м), втора баня с тоалетна (5,3 кв.м) и перално помещение (4,4 кв.м) с излаз на балкон (2,9 кв.м). Изложението е югоизток/югозапад.

Къщата се продава необзаведена. Ще бъде завършена до степен БДС, с поставена ПВЦ дограма. Налични са електричество и вода в имота.

Двуетажната къща е тухлена, на етап на строителство пред издаване на Акт 14. Към нея има самостоятелно дворно място и открито паркомясто в него, включено в продажната цена. В съседство се продава идентична къща, също със собствен парцел.

Оферта 0221734
Виж всички обяви в varnatrend.bazar.bg или тук
Особености
Тухла
За контакт:
0894625282
Брокер:
Димитър Желязков
0894 625282, 052 625272
Още оферти от брокера: Продава | Дава под наем | Купува | Наема
Агенция:
ЕРА ВАРНА ТРЕНД
0894625282
ЕРА ВАРНА ТРЕНД logo
Медал за прослужено време
В imot.bg от 2004 г.
varnatrend.imot.bg
Адрес:
област Варна, гр. Варна, ул. Шар 1
ИЗПРАТИ ЗАПИТВАНЕ
ИЗПРАТИ ЗАПИТВАНЕТО

Продава КЪЩА
град Варна, м-т Манастирски рид
Обява: 1j175431840154902

350 000 €
684 540.50 лв.
(1 842 €, 3 602.64 лв./m2)

Цената е с включено ДДС
ЗАПАЗИ ОБЯВАТА

Местоположение: град Варна, м-т Манастирски рид

Допълнителни данни за имотите в района и сравнение с други райони: Търсене в АРХИВ 2013 - 2025 г.











Добави/редактирай
вид имот и район
*Средните цени са определени чрез медиана стойност.