Обяви За нас Контакти
Продава КЪЩА
област Варна, с. Горица
169 900 €
332 295.52 лв.

(1 307 €, 2 556.27 лв./m2)
Цената е с включено ДДС
История на цената
Коригирана в 9:06 на 30 октомври, 2025 год.
Обявата е посетена 316 пъти.
Площ:
130 m2
Двор:
589 m2
ТEЦ:
НЕ
Строителство:
Тухла, Ще бъде въведен в експлоатация 2025 г.

Описание на имота:


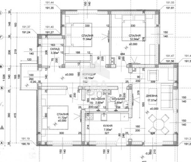
НОВОПОСТРОЕНА КЪЩА С ТРИ СПАЛНИ, ДНЕВЕН ТРАКТ, ВЕРАНДА И ДВОРНО МЯСТО, НА 3 КМ ОТ ПЛАЖА НА КАРА ДЕРЕ И РИБАРСКО ПРИСТАНИЩЕ ЧАЙКА, В СЕЛО ГОРИЦА. ЕРА Варна Тренд предлага за продажба едноетажна тухлена къща с РЗП 130 кв.м, изградена върху дворно място с площ 589 кв.м, в село Горица, обл. Варна. Намира се на 3 км от плаж Кара дере и рибарското пристанище Чайка, с удобен и лесен достъп от главния път, в близост до хранителен магазин и гостилница При Панчо. Проектирана е с използването на най-съвременни строителни технологии, отговарящи на всички нормативни изисквания и изпълнена с високо качество на строителство. Състои се от дневна с кухненски бокс и трапезария (24,57 кв.м), три спални (12,54 кв.м, 11,94 кв.м и 11,72 кв.м), коридор (10,1 кв.м), две бани с тоалетни (всяка по 2,6 кв.м), складово помещение (3,35 кв.м) и веранда.

Къщата се предлага до степен на завършеност по БДС (на тапа):
- висок клас дограма;
- завършени ВиК и ел. инсталации;
- вътрешни стени, коридор, помещения и бани на тухла;
- външна топло и хидроизолация;
- външна минерална мазилка;
- фасадно лед осветление.
- веранда и пътеки с подова настилка от гранитогрес.

Дворното място към къщата е с площ 589 кв.м, с предвидени две паркоместа в границите на имота, с достъп от улицата посредством монтирана бариера. Налични са електричество и вода (присъединяване към ВиК). Канализацията е чрез изпълнена водоплътна изгребна яма в имота. В момента къщата е на етап на строителство пред издаване на Разрешение за ползване (Акт 16).

Горица е село в Североизточна България. То се намира в община Бяла, област Варна, на 6 км северозападно от гр. Бяла. Селото е разположено на главния път Варна-Бургас, на 3 км от залива Кара дере, на над 100 м надморска височина, на едно от предните разклонения на Стара планина.

Оферта 0221323
Виж всички обяви в varnatrend.bazar.bg или тук
Особености
Тухла
За контакт:
0894625282
Брокер:
Бранимир Венелинов
0894625282
Още оферти от брокера: Продава | Дава под наем | Купува | Наема
Агенция:
ЕРА ВАРНА ТРЕНД
0894625282
ЕРА ВАРНА ТРЕНД logo
Медал за прослужено време
В imot.bg от 2004 г.
varnatrend.imot.bg
Адрес:
област Варна, гр. Варна, ул. Шар 1
ИЗПРАТИ ЗАПИТВАНЕ
ИЗПРАТИ ЗАПИТВАНЕТО

Продава КЪЩА
област Варна, с. Горица
Обява: 1j175449264721941

169 900 €
332 295.52 лв.
История на цената
(1 307 €, 2 556.27 лв./m2)

Цената е с включено ДДС
ЗАПАЗИ ОБЯВАТА

Местоположение: област Варна, с. Горица