Обяви За нас Контакти
Продава КЪЩА
град Варна, м-т Сълзица
590 000 €
1 153 939.70 лв.

(2 169 €, 4 242.20 лв./m2)
Цената е с включено ДДС
История на цената
Коригирана в 8:58 на 4 ноември, 2025 год.
Обявата е посетена 2796 пъти.
Площ:
272 m2
Двор:
750 m2
Газ:
ДА
ТEЦ:
НЕ
Строителство:
Тухла, Въведен в експлоатация 2018 г.

Описание на имота:


ЕКСКЛУЗИВНО! ДВУЕТАЖНА, ОБЗАВЕДЕНА В ИНДУСТРИАЛЕН СТИЛ КЪЩА, С ГОЛЯМ ДВОР И БАСЕЙН, НА 600 М ОТ БУЛ. ТРЕТИ МАРТ. ЕРА Варна Тренд предлага за продажба двуетажна къща с РЗП 272 кв.м и следното разпределение:

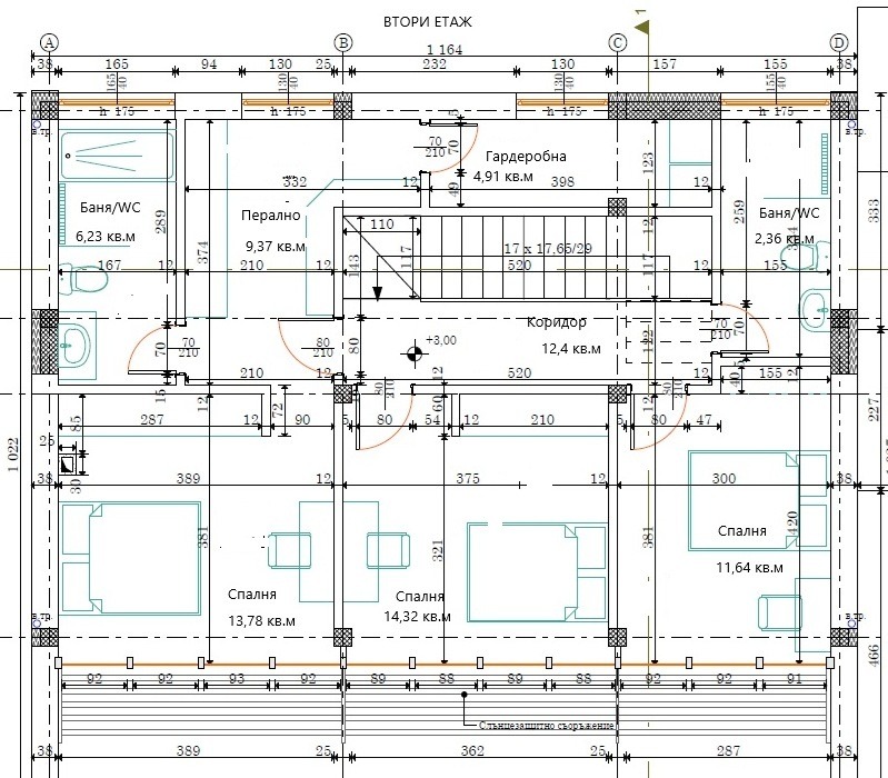
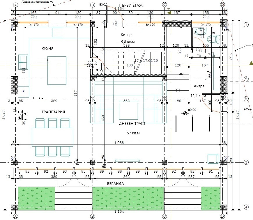
Първият етаж със застроена площ 105,68 кв.м се състои от входно антре (12,4 кв.м), просторна дневна с кухненски бокс и трапезария (57 кв.м), с излаз на широка веранда с навес, маса за хранене, столове и барбекю, килер (9,8 кв.м) и баня с тоалетна (1,9 кв.м). Вътрешно стълбище води до втория етаж със застроена площ 96 кв.м, включващ три спални (14,32 кв.м, 13,78 кв.м и 11,64 кв.м), коридор (12,4 кв.м), перално помещение (9,37 кв.м), гардеробна (4,91 кв.м) и две бани с тоалетни (6,23 кв.м и 2,36 кв.м). Изложението е изцяло южно. Към къщата има и голяма изба (70 кв.м).

Къщата се продава завършена с висококачествени материали, модерно обзаведена в индустриален стил и напълно оборудвана с ел. уреди. Стените са тухлени, с дебелина 38 см. Подовите покрития са гранитогрес на първия етаж и ламинат на втория етаж, стълбище - мокет. Има подово отопление на газ във всички стаи. Налични са електричество, вода и канализация в имота.

Двуетажната къща е тухлена, построена през 2018 г. Дворното място към нея е с площ 750 кв.м. Разполага с басейн, просторна тревна площ и три открити паркоместа. Имотът е обезопасен със СОД. Намира се в м-т Кочмар, на 600 м от бул. Трети март и кв. Възраждане 2. В съседство са м-т Сълзица и кв. Възраждане 4.

Оферта 0221757
Виж всички обяви в varnatrend.bazar.bg или тук
Особености
Тухла
Обзаведен
За контакт:
0894625282
Брокер:
Десислава Арангелова
0894 625282, 052 625272
Още оферти от брокера: Продава | Дава под наем | Купува | Наема
Агенция:
ЕРА ВАРНА ТРЕНД
0894625282
ЕРА ВАРНА ТРЕНД logo
Медал за прослужено време
В imot.bg от 2004 г.
varnatrend.imot.bg
Адрес:
област Варна, гр. Варна, ул. Шар 1
ИЗПРАТИ ЗАПИТВАНЕ
ИЗПРАТИ ЗАПИТВАНЕТО

Продава КЪЩА
град Варна, м-т Сълзица
Обява: 1j175497840134589

590 000 €
1 153 939.70 лв.
История на цената
(2 169 €, 4 242.20 лв./m2)

Цената е с включено ДДС
ЗАПАЗИ ОБЯВАТА

Местоположение: град Варна, м-т Сълзица

Допълнителни данни за имотите в района и сравнение с други райони: Търсене в АРХИВ 2013 - 2025 г.











Добави/редактирай
вид имот и район
*Средните цени са определени чрез медиана стойност.